
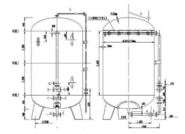
機械過濾器結構示意圖

機械過濾器的結構示意圖如上所示,整體結構較為簡單,主要是采用碳鋼或者不銹鋼材質作為過濾器罐體。基本的單流機械過濾器由一個進水口,一個出水口,一個排污口,一個排氣閥。機械過濾器罐體較大,采用碳鋼防腐,機玻璃體、不銹鋼、玻璃鋼等材質作為罐體。對于有特殊要求的食品飲料行業及制藥行業,可以采用SUS316L材質罐體。
機械過濾器機身長度比較長,水箱底部到地面的距離0.3米以上,總體機身長度一般在2米以上,重量在500KG以上。由于機械過濾器罐體較大,其進出水口管道都比較粗,水質流速都比較快。機械過濾進出水口管道都是有專門的閥門進行連接,機身外部安裝有不銹鋼樓梯,必備操作人員更換濾料,檢查內部運行情況。
機械過濾器過濾狀態示意圖

機械過濾器在進行過濾時,通常是采用上進下出的過濾方式,待過濾液體經過濾料層層過濾,最終干凈的水質通過下端出水口流出。
機械過濾器反洗示意圖

機械過濾器反洗時是一個由下往上,由中間向兩邊的一個過程。機械過濾器在進行反洗時形成內湍流,具有反洗效率高,時間短,更加節水。
本文由水天藍環保(http://www.fengxinwj.cn/)原創首發,轉載請以鏈接形式標明本文地址或注明文章出處!



客服1